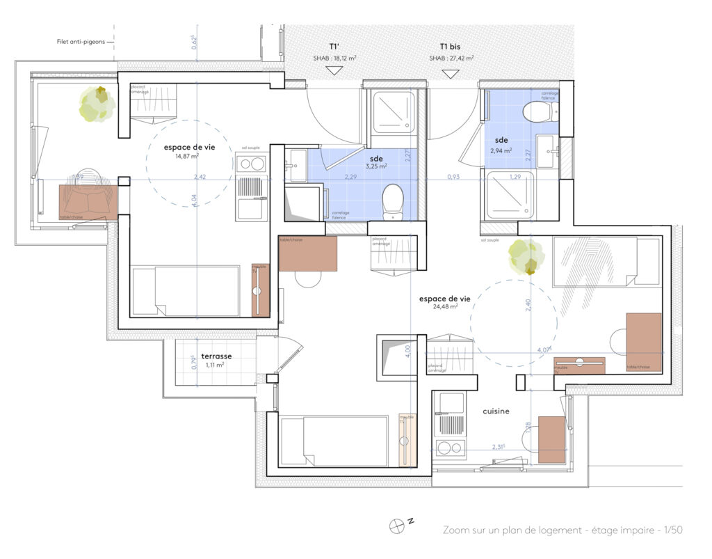
Le Foyer de Jeunes Travailleurs Daniel Féry s’inscrit dans le grand ensemble du Val d’Argent Nord d’Argenteuil construit dans les années 70. La résidence a été conçue comme un empilement d’un module de chambres changeant d’orientation entre les étages pairs et ceux impairs. Ce dispositif astucieux, d’avancées et de retraits permet aux logements de bénéficier d’une terrasse sur la saillie de l’étage inférieur. Ce jeu de composition donne à lire une combinaison foisonnante de plans de façades.
Le projet consiste au réaménagement complet des étages afin d’en redessiner les logements, en s’appuyant sur les qualités de l’existant tout en répondant aux exigences de performance et de confort actuel. En extérieur, cette réhabilitation lourde doit respecter et valoriser la singularité du bâtiment tout en la modernisant par une intervention architecturale simple et chaleureuse.
Programme : restructuration lourde d’un foyer de jeunes travailleurs de 123 logements en site occupé
Maîtrise d’ouvrage : Batigère Developpement
Localisation : 15 rue de la Berionne – Argenteuil (95)
Équipe : croixmariebourdon architectes associés, architecte, mandataire ; COTEC, bet TCE ; STM, be désamiantage
Mission : diagnostic + mission complète (études et travaux)
Surfaces : terrain 1400m² / SPC 3665 m² / SHAB 3372 m²
Performances énergétiques : NF habitat, HQE rénovation
Budget travaux : 6.25 M€ HT
Livraison : 2025
92Aménagement urbain d’un îlot de fraicheur, Malakoff
94Halle gourmande, Champigny-sur-Marne
92Construction d’un immeuble de bureaux, Malakoff
75Restructuration d’une résidence sociale, Paris 11e
94Halle de marché, Cachan
92Transformation d’un immeuble de bureaux en logements et activités, Châtillon
75Réhabilitation d’un immeuble de logements, Paris 12e
94Construction d’une résidence sociale de 152 logements, Thiais
94Construction d’une halle de marché, Fontenay-sous-Bois
93Siège social et site de production, Tremblay-en-France
91Extension du groupe scolaire Paul Bert à Paray-Vieille-Poste
75Pôle logistique et local commercial, Paris 18e
77Construction d’une plateforme agroalimentaire, Provins
75Réhabilitation thermique d’un immeuble de logements, Paris 17e
75Réhabilitation de 50 logements et 1 crèche, Paris 15e
92Salle polyvalente, Clichy-la-Garenne
92Maison bois, Sceaux
77Construction d’un îlot de logement, Bussy-Saint-Georges
56Réaménagement et extension des halles de Mervilles, Lorient
93Réhabilitation d’une résidence HBM, Paris 13e
92Restructuration et extension d’une école élémentaire, Malakoff
72Bâtiment de stockage, Pays de la Loire
92Halle de marché, parking public et esplanade, Courbevoie
93Transformation de bureaux en 70 logements, Pantin
75Réhabilitation de 95 logements en site occupé, Paris 20e
92Construction d’un immeuble de 22 logements, Malakoff
94Entrepot frigorifique E0g, Chevilly-Larue, MIN de Rungis
75Réhabilitation de logements en site occupé, Paris 11e
92Réhabilitation de 119 logements en site occupé, Sèvres
29Halles gourmandes, Quimper
92Résidence de logements et local commercial, Malakoff
75Arena Paris la Chapelle, JOP 2024, Paris 18e
9437 logements en accession, Créteil
93Réhabilitation d’une résidence intergénérationnelle, Sevran
91Bureaux, espace social et logements, Viry-Châtillon
75Pension de famille de 20 logements, Paris 17e
75Résidence étudiante de 33 logements, Paris 18e
9460 logements en accession, Orly
94Halle de marché, parking et esplanade, Nogent-sur-Marne
00Construction d’une bibliothèque, Guiré-Casamance, Sénégal
93Construction d’une résidence sociale, Rosny-sous-Bois
94Rénovation d’une école maternelle, Chevilly-Larue
93Halle de marché, Bondy
75Aménagement d’un ensemble commercial, Paris 13e
92Résidence sociale de 115 logements, Boulogne-Billancourt
92Restructuration d’une école maternelle, Malakoff
78Maison, St Germain en Laye
92Surélévation Bois, Malakoff
75Réemploi de façades provisoires, Paris 13e
75Restaurant scolaire, Paris 1er
7810 logements semi-collectifs, Jouy-en-Josas
75Restructuration de 20 logements et activités, Paris 2e
7512 logements sociaux, Paris 19e
75Résidence pour jeunes travailleurs, Paris 19e
75Restructuration patrimoniale, Paris 1er
94Entrepôt logistique C0k, Chevilly-Larue – MIN de Rungis